Displaying: of 3

Agent Details

Mickey Thuy Mustica

Share

Prime Bunbury CBD Opportunity - Commercial Space with potential for Residential Apartments STCA

Offers Over $700,000

12 Casuarina Drive, Bunbury

1

Profile

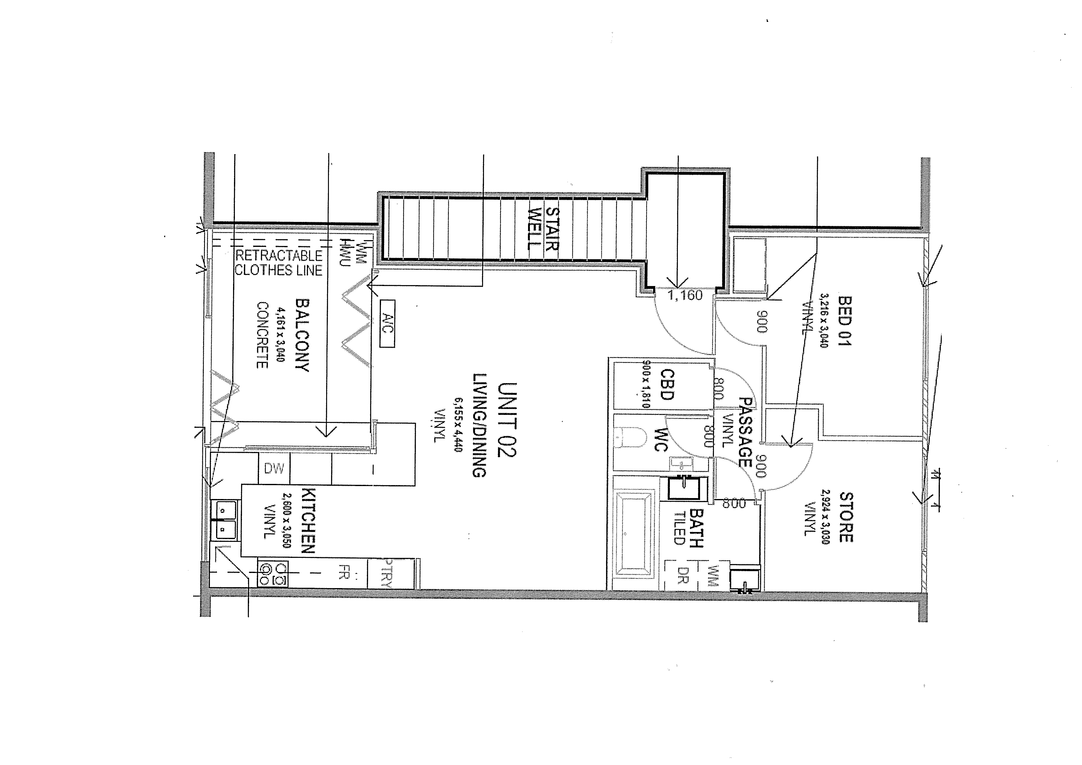
Here's your chance to own a versatile property in the heart of Bunbury CBD, combining a commercial space on the ground floor with a spacious upstairs commercial - perfect for investors, owner-operators, or potential for those seeking a live-and-work setup.

✨ Commercial Potential:
• Ground floor space ideal for retail, office, or café
• High-traffic CBD location ensures exposure and growth potential
• Dual-income possibilities from both floors.
• Upstairs Commercial ideal for prime upmarket office space with aesthetic views to the Inlet
• This property offers a rare combination of location, flexibility, and future value - a smart investment or lifestyle choice in Bunbury's thriving central hub.

📍 Location Benefits:
• Walk to shops, cafes, restaurants, and essential amenities
• Prime CBD position with strong foot traffic and visibility
• Potential for Residential or mix of Residential and Commercial.
• If larger Commercial space required there is also potential to use both upstairs and downstairs, giving a total space of around 170M2.

✨ Potential for Two Residence Subject to Council Approval
• Potentially 2 Spacious 2-bedroom, 1-bathroom apartment with high ceilings
• Bright, airy feel with lots of natural light
• Balcony (to be completed) - excellent potential for outdoor living
• Separate side access from the ground floor for flexible use or dual tenancy
• Partially renovated, giving the new owner the opportunity to add personal finishing touches

Don't miss your chance to capitalize on this unique Bunbury CBD property - live, work, and invest all in one! Contact me today Mickey Thuy Mustica 0424 739 939

Features

21564880
Property ID
215 sqm approx.
Land Size
214 sqm approx.
Building Size

Send Enquiry

Your Details
Your Enquiry
  1. Please describe how we can be of assistance to you.

  2.  

    Would you like to join our mail list?

Submit